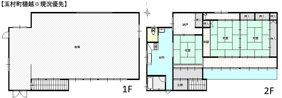
| 価格 | 750万円 | 間取 | 3SK |
|---|---|---|---|
| 所在地 | 群馬県佐波郡玉村町樋越町470-3他 中古作業所 |
||
| 交通 | JR両毛線駒形駅 徒歩5000m | ||
| コメント | 物件等についてのお問い合わせは、可能な限りメールやFAXにてお願い致します。 電話でのお問い合わせの場合には、担当者が電話対応中や外出中の場合には出られない事が ありますので、ご理解いただけると助かります。 ※建物の見学を希望されるお客様へのお願いです。 カーナビ入力:佐波郡玉村町樋越470付近 |
||
物件画像
物件詳細情報
| 所在地 | 群馬県佐波郡玉村町樋越町470-3他 中古作業所 |
||
|---|---|---|---|
| 交通 | JR両毛線駒形駅 徒歩5000m | ||
| 駐車場 | 取引態様 | 専任 | |
| 引渡/入居時期 | 即時 | 現況 | 古屋あり |
| 地目 | 宅地 | 用途地域 | 無指定 |
| 都市計画 | 市街化調整区域 | 地勢 | 平坦 |
| 土地面積計測方式 | 公簿 | 土地面積 | 429.94m² |
| 坪数 | 130.06坪 | 坪単価 | 57,666円 |
| 建ぺい率 | 70% | 容積率 | 200% |
| 土地権利 | 所有権 | 接道状況 | |
| 接道方向1 | 北 | 接道間口1 | 31.6m |
| 接道種別1 | 公道 | 接道幅員1 | 4.2m |
| 周辺環境 | 上陽 玉村 | ||
| 設備・条件 | プロパンガス 公営水道 排水下水 | ||
| URL | https://www.athome.co.jp/buy_other/6988076677/ | ||
| 物件番号 | |||
| 自社物 | 自社物 | 状態 | 売出中 |
MAP(最寄駅)
Loading...
※物件掲載内容と現況に相違がある場合は現況を優先と致します。




























